In October 2021, I was questioning my decision to flip the house upside down when I wrote, poor design or bright vision? I was right to be anxious, neither of the plans my architect produced were being adhered to.
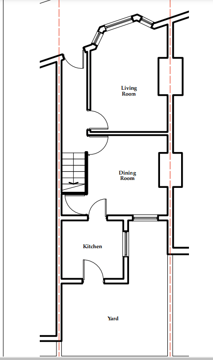
Riding high on the success of creating a double height open plan living room and kitchen upstairs, I now needed the two bedrooms and the bathroom that was upstairs, to fit down stairs.
An extension would have been one solution but I didn’t want to eat into the already small yard, in order for the new design to work I needed to fit a staircase and bathroom into the existing kitchen floor space downstairs.

Originally you walk through the dining room to enter the kitchen. However as my dining room was now my bedroom, I had to create a separate entrance so you don’t have to walk through my bedroom to get into the bathroom.
In the UK we call my style of house a 3 up 3 down, meaning that the floor plan down stairs is identical to the upstairs, 3 rooms upstairs and 3 rooms downstairs. The Victorians built the main house and then an outrigger to the back of the property and most had the toilet out in the back yard! My outrigger on the ground floor was now going to house my staircase in one half and a bathroom in the other.

By moving the staircase to the back of the house I now had this beautiful uninterrupted space upstairs.

However I had to now fit a staircase and bathroom into the space of the old kitchen downstairs. On paper it looked feasible but in reality could it be a workable space?

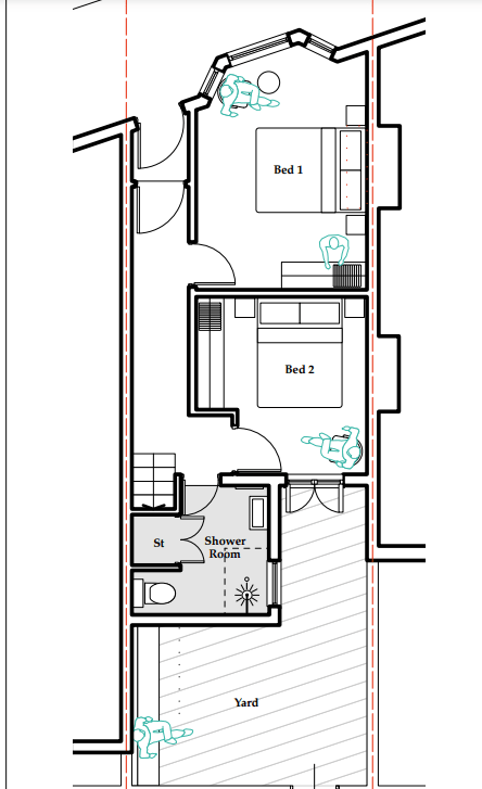
My big problem was that the only access to the yard was now via a bedroom, less than ideal, but my more immediate problem was there was no room for a bath in the bathroom! I achieved this by ditching the idea of a bathroom and turning it into a wet room. I could have fit a small bath tub in there, or I could opt for a large shower instead.



Once the staircase had been moved to the back of the house into what was the old kitchen, I could visualise whether a bathroom would also fit in this space. Luckily the staircase took up about 1/3 of the old kitchen and would leave me just about enough room for a wet room.
The two pictures below taken from the same angle in what was the dining room showing the entrance to the kitchen and an under stairs cupboard.




I really regret not taking more pictures of the kitchen, to be fair I was working in the dark most of the time on accound of the windows and doors being bricked up, plus I could barely see through the dust to get a shot. My priority at the beginning was not to document the build.
This shot below was in the once dining room with borrowed electricity from the neighbour and dust for days.


Next I needed to brick up the old back door and turn the kitchen into a bathroom.



Back door blocked off on the outside and insulated and plaster boarded on the inside.





I went for a big shower instead with pebble tile flooring. I used the space under the stairs for the toilet and placed the shower by the window, the sink fits snug by the door and there a massive cupboard space under the stairs too.



Plumb, plaster and then the tiler came. Expect to pay around £40/m2 for a good tiler. He also tanked the bathroom and installed an electric mat of UFH.
Inspired by my recent trip to Wuhan, before the whole sexy pangolin debacle, I bamboozled my way through decorating the bathroom with donated paint and a bamboo stencil.



If I could do anything differently i’d definitely create some customised storage under the stairs with better integrated units, now I have a hole that has been tiled around which makes it hard to change.

I would also not install a towel rail, it is not needed in hindsight.




Cost of bathroom
A good tiler is about £40/sqm
UFH £153 – Fastwarm
Tanking and screeding floor £360.00 inc materials and labour
Outlet Bathrooms Lower Lane
Shower £180
Sink, black taps and fittings and unit £200
Toilet £100
Towel rail £120
Electrician
Wire in Fuse spare UFH £90
Tiles
Mat black floor and wall tiles £386.68 – Beesley & Fildes Ltd
Pebble tiles for the shower £49.99-online
Tiler £40/m2 =£1200
Shower pane smoked glass £120 – online
Paint and decorating £15
Plant £6
Elephant toilet roll holder £13- Matalan
Painting/painting accessories £18